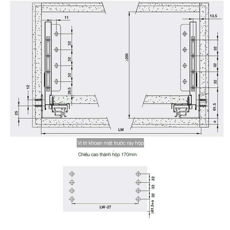
Thông số kĩ thuật của ray hộp Hafele Alto S PTO chức năng nhấn mở màu xám đậm H170/500mm 552.35.355
- Mở toàn phần với chức năng nhấn mở
- Tải trọng: 30kg
- Chiều dài: 500mm
- Chiều cao: 170mm
- Thanh nâng cấp dài hình ô vuông
- Vật Liệu: Bằng thép
- Hoàn thiện: Mạ nikel
- Màu hoàn thiện: ray trượt mạ kẽm, thành hộp sơn tĩnh điện màu xám đậm
- Khả năng điều chỉnh
+ Điều chỉnh chiều cao + 2.0 mm
+ Điều chỉnh mặt bên ± 1.5 mm
+ Điều chỉnh độ sâu ± 1.5 mm
- Cơ cấu bi lăn tiên tiến giúp chuyển động mượt mà
- Bao gồm
+ 1 cặp ray trượt mở toàn phần
+ 1 cặp thành hộp H170 mm
+ 2 bas mặt trước
+ 1 cặp bas ray trượt
+ 2 bas mặt sau
+ 2 nắp che với Hafele logo











Đánh giá
Chưa có đánh giá nào.